W ubiegłym tygodniu w Słonem odbyło się spotkanie poświęcone planom budowy nowego mostu na rzece Klikawa. Inwestycja ma na celu usprawnienie komunikacji tej części Kudowy-Zdroju z pozostałymi rejonami miasta.
Jak podkreślano podczas spotkania, potrzeba budowy mostu szczególnie uwidoczniła się w trakcie ostatniego remontu drogi, gdy brak przejazdu przez ulice Słone i Nad Potokiem powodował znaczne utrudnienia dla mieszkańców. Temat konieczności stworzenia alternatywnego połączenia zgłoszony został podczas corocznego spotkania burmistrza z mieszkańcami.

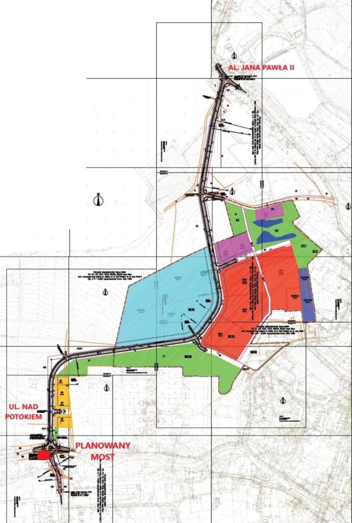
Podczas spotkania, w którym udział wzięli m.in. burmistrz Kudowy-Zdroju, przewodniczący Rady Miejskiej oraz projektant, omówiono możliwe warianty lokalizacji mostu. Za najbardziej zasadną uznano propozycję budowy przy ulicy Fredry, która w przyszłości umożliwi dodatkowe połączenie Słonego i Czermnej z drogą krajową nr 8, poprzez osiedle tzw. Wichrowe Wzgórze.


UM Kudowa-Zdrój















![Świąteczny singiel od Jakuba Milewskiego. "To tylko przedsmak" [WIDEO]](https://www.eostroleka.pl/luba/dane/pliki/zdjecia/2025/jm.jpg)
